Price Range: from $200 to $2,500,000
Size Range: from 10 SqFt to 1,000 SqFt
Land Area Range: from 10 SqFt to 1,000 SqFt
Other Features
Price Range: from $200 to $2,500,000
Size Range: from 10 SqFt to 1,000 SqFt
Land Area Range: from 10 SqFt to 1,000 SqFt
Other Features
  • 3 years ago
  • 46 views

Property Information Detailed Description Presented by Restville Realtors

955000 $955,000 K

Description

Address: Kiiltokallionkuja 1A
Area: Mankkaa, Espoo
Property Type: Detached house
Year of Construction: 2009
Floors: 2
Debt-Free Price: €985,000

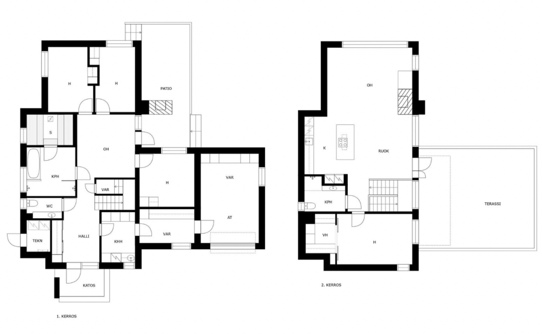
General Overview of the Property

This detached house located at Kiiltokallionkuja 1A in the highly regarded Mankkaa area of Espoo is a carefully designed and well-maintained residential building intended for long-term family living. The house has been architect-designed, with emphasis placed on functionality, structural quality, and comfortable everyday living rather than decorative excess.

The property offers flexible living solutions with 5–6 rooms, making it suitable for families, remote work arrangements, and multi-purpose use. The layout supports both shared family life and private personal space. The building has been regularly inspected and updated, ensuring its technical systems and structures remain in good condition.

Size and Area Details
• Living area: 159.0 m²
• Total area (including auxiliary spaces): 189.5 m²
• Total floor area according to building drawings: 219 m²

Additional spaces include:
• Garage: 21.0 m²
• Storage room: 7.0 m²
• Technical room: 2.5 m²
• Total additional spaces: 30.5 m²

The stated areas are based on official building drawings and an unofficial RAHU report from the City of Espoo. Surface areas have not been independently verified.

Building Structure and Construction

The house is constructed with stone materials, ensuring durability, stability, and good insulation properties.
• Frame: Lammin Betoni LL400 insulated block structure
• Load-bearing walls: 150–200 mm cast concrete blocks
• Roof type: Pulpit roof
• Roof material: Metal roofing

This construction method provides strong thermal performance, low maintenance needs, and long-term structural reliability.

Heating, Ventilation, and Energy Efficiency

The house is equipped with modern and efficient building systems designed for year-round comfort:
• Heating system: Exhaust air heat pump
• Heat distribution: Water-circulated underfloor heating throughout the house
• Ventilation: Mechanical ventilation with heat recovery (LTO)

Recent updates include:
• 2025: New NIBE exhaust air heat pump installed
• 2025: Ventilation ducts cleaned and airflow adjusted
• 2025: Fireplace sweeping and condition inspection

These upgrades contribute to improved energy efficiency and indoor air quality.

Interior Layout and Living Spaces

Living Areas
The central living area is designed as an open-plan space combining:
• Living room
• Dining area
• Kitchen

Large windows allow ample natural light, creating a bright and open atmosphere. The living room provides direct access to a large, sheltered terrace, positioned at the level of the surrounding pine trees. A second terrace and lawn area are located downstairs, offering additional outdoor space.

The living areas feature:
• Tiled floors
• Painted walls
• White fireplace as a functional and visual centerpiece

A secondary living room downstairs also opens to the terrace through double doors.

Kitchen

The kitchen is designed for everyday practicality and durability rather than decorative trends.

Equipment includes:
• Refrigerator and freezer
• Integrated dishwasher
• Oven and microwave
• Induction hob
• Extractor hood
• Bosch built-in coffee machine

Finishes:
• Stone composite countertops
• Tiled floor
• Painted walls

Bedrooms

The house includes four primary bedrooms, with the possibility of a fifth or sixth room depending on use.
• Master bedroom located upstairs
• Walk-in closet in the master bedroom
• Laminate flooring
• Painted walls
• Sliding-door closets in additional bedrooms

The layout allows bedrooms to be used flexibly for sleeping, working, or hobbies.

Bathrooms, Toilets, and Sauna

Main Bathroom
The main bathroom is spacious and designed for daily use and relaxation:
• Two separate rain showers behind glass walls
• Whirlpool bathtub
• Window for natural light and ventilation
• Tiled floors and walls
• Wood-paneled ceiling

Toilets
There are two toilets, both fully equipped with:
• Sink drawers
• Wall cabinets
• Large mirrors
• Damixa faucets
• Tiled floors and walls
• Windows

One toilet includes a shower area with sliding glass doors.

Sauna
The property includes a sauna featuring:
• Pillar heater
• Wood-paneled walls
• Tiling behind the heater
• Solid wood benches
• Tiled floor

Utility and Storage Spaces
• Utility room with direct access from the garage
• Cabinets, sink, faucet, and counter
• Washing machine and dryer connections
• Integrated ironing board
• Artweger drying rack
• Painted walls and tiled floor

Additional storage includes:
• Storage room between the attic and the garage
• Spacious hallway with large sliding-door closets

Garage and Parking
• Heated garage
• Electric car charging station
• Direct indoor access to storage and utility rooms

This layout improves everyday convenience, especially during the winter months.

Yard and Outdoor Areas

The yard is:
• Fully finished
• Sheltered by a dense thuja hedge
• Easy to maintain

The terraces and lawn areas provide functional outdoor space for daily use without requiring extensive upkeep.

Location and Services

The property is centrally located in Mankkaa with close access to essential services:

Shops and Services
• Alepa Mankkaa – approx. 800 m
• Lidl Mankkaa – approx. 900 m
• K-Supermarket Mankkaa – approx. 2.5 km
• Ainoa Shopping Centre – approx. 2.7 km

Schools and Daycare
• Mankkaanpuro School (grades 1–6 & preschool) – approx. 210 m
• Mankkaan School (grades 7–9) – approx. 350 m
• Purolan Daycare – approx. 230 m walking distance

Recreation
• Tapiola Sports Park – approx. 2 km
• Tapiola Golf – approx. 2 km

Public and private transport connections are smooth and practical.

Housing Costs and Energy Use
• Water and sewage: €62.50 / month
• Waste management: €31.70 / month
• Property tax: €1,423.86 / year
• Fiber optic internet: €40.40 / month
• Verisure alarm system: €86.16 / month

Electricity consumption:
• Current usage (3 persons): approx. 25,400 kWh/year
• Estimated after new heat pump (4 persons): approx. 18,277 kWh/year

Electricity, insurance, and usage-based costs depend on household size and habits.

Purchase Information
• Selling price: €955,000
• Debt-free price: €955,000
• Transfer tax: 6% of purchase price
• Availability: According to the agreement

Closing Note from Restville Realtors

This description has been prepared to provide a transparent and comprehensive understanding of the property, its structure, systems, and everyday usability. The goal is to help customers form a clear picture of the house before making further inquiries or decisions.

For additional documentation, floor plans, inspections, or to arrange a private viewing, Restville Realtors will be happy to assist.

Overview

  • ID 72095
  • Bedrooms 5
  • Garages 3
  • Size 159 SqFt
  • Land Size 189.5 SqFt
  • Year Built 2019
  • Address Kiiltokallionkuja 1a, 02180 Espoo, Finland
  • Country Finland
  • Postal code/ZIP 9GG65QRH+GM

Details

  • Property ID 72095
  • Price 955000 $955,000 K
  • Property Type ,
  • Property Status ,
  • Property Label
  • Rooms 6
  • Bedrooms 5
  • Year Built 2019
  • Size 159 SqFt
  • Land area 189.5 SqFt
  • Garages 3
  • Garage area 30.5 SqFt

Floor Plans

Floor 1

Mortgage Calculator

Attachments

IMG_9400

jpeg document

Download

Rating & Reviews

Avarage User Rating

0/ 5

Rating Breakdown

  • 0%
  • 0%
  • 0%
  • 0%
  • 0%

Write A Review

Similar Homes You May Like

Compare