Description
Presented by Restville Realtors
Welcome to an exceptional opportunity to own a stunning stone-built detached house located in one of Helsinki’s most prestigious and peaceful residential areas. Situated at Kuvernöörintie 3, 00840 Helsinki, Finland, this remarkable home combines timeless architecture, generous living spaces, and an outstanding location close to the sea. Offered exclusively by Restville Realtors, this property is ideal for families or buyers seeking comfort, space, and long-term value.
Property Overview
• Selling Price: €870,000
• Debt-Free Price: €870,000
• Living Area: 210 m²
• House Type: Detached house
• Year of Construction: 2018
• Energy Class: C (2018)
• Rooms: 5–6 rooms (open-plan), kitchen, living room, dining room, 2 bathrooms, separate toilet, storage room
• Heating: District heating with water-circulated underfloor heating
• Neighborhood: Yliskylä, Laajasalo
• City: Helsinki
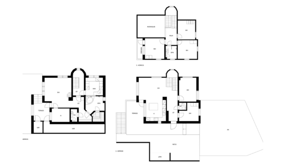
Architectural Design & Living Spaces
The heart of this beautiful home is its impressive central living area, designed to bring people together. Crowned by large windows and a breathtaking ceiling height of nearly five meters, the space feels bright, open, and airy throughout the day. Natural light flows effortlessly into the home, creating a warm and inviting atmosphere.
From the living area, there is direct access to both a patio and a sheltered courtyard, seamlessly blending indoor and outdoor living. The courtyard is green, spacious, and versatile, offering ample room for plantings, outdoor furniture, children’s play equipment, or even a trampoline — a perfect private oasis for relaxation and family life.
Kitchen & Dining
The home features a stylish oak kitchen that will delight both everyday cooks and passionate bakers. The kitchen is equipped with:
• A movable kitchen island
• Elegant stone countertops
• Integrated high-quality appliances
• Abundant storage and generous counter space
There is plenty of room for casual breakfasts, family meals, and baking sessions, making the kitchen both functional and welcoming.
Bedrooms & Bathrooms
On the main floor, next to the living room, you’ll find two comfortable bedrooms and a separate toilet, ideal for guests or family members who prefer easy access without stairs.
The upper floor offers three additional bedrooms, providing privacy and flexibility for family living, home offices, or guest rooms. A well-appointed bathroom serves this level, and the floor is completed by a charming balcony, perfect for enjoying fresh air and peaceful views.
Lower Level & Wellness Features
The downstairs level enhances the home’s versatility and comfort, featuring:
• A cozy fireplace
• A dedicated study
• A practical utility room
• A relaxing sauna area, perfect for unwinding after long days or hosting wellness evenings at home
These spaces add both luxury and practicality, making the home suitable for modern lifestyles.
Heating & Energy Efficiency
The house is heated by district heating, with heat distributed through water-circulated underfloor heating. This system ensures even warmth, energy efficiency, and a clean interior aesthetic without visible radiators.
Location – Yliskylä, Laajasalo
Yliskylä is one of Laajasalo’s most sought-after residential areas, known for its peaceful atmosphere and high-quality homes. The area’s greatest advantage is its proximity to the sea, offering beautiful surroundings and excellent outdoor opportunities.
In addition, the property enjoys excellent transport connections, including reliable public transport links to the rest of Helsinki. This makes daily commuting easy while still allowing residents to enjoy a calm, nature-oriented lifestyle.
A Home That Truly Has It All
This gorgeous stone house in Laajasalo represents a rare combination of space, quality construction, thoughtful design, and an outstanding location. Whether you are looking for a long-term family home or a prestigious residence in Helsinki, this property is an exceptional choice.
For more information or to arrange a private viewing, contact Restville Realtors — your trusted partner in premium real estate.
Restville Realtors – Where Exceptional Homes Meet Exceptional Living.
Overview
-
ID 8720
-
Type House
-
Bedrooms 5
-
Bathrooms 4
-
Garages 2
-
Size 120 SqFt
-
Land Size 300 SqFt
-
Year Built 2018
Address
Open on Google Maps-
Address Kuvernöörintie 3, 00840 Helsinki, Finland
-
Country Finland
-
Postal code/ZIP 00840
Details
-
Property ID 8720
-
Price 890000 $870,000 K / 870000
-
Property Type House
-
Property Status Custom Build, For Sale
-
Property Label Hot Offer
-
Rooms 6
-
Bedrooms 5
-
Bathrooms 4
-
Year Built 2018
-
Size 120 SqFt
-
Land area 300 SqFt
-
Garages 2
-
Garage area 40 SqFt
Avarage User Rating
Rating Breakdown
Write A Review